Používame cookies

Súbory cookie a ďalšie technológie sledovania používame na zlepšenie vášho zážitku z prehliadania našich webových stránok, na to, aby sme vám zobrazovali prispôsobený obsah a cielené reklamy, na analýzu návštevnosti našich webových stránok a na pochopenie toho, odkiaľ naši návštevníci prichádzajú. Viac info

 

Na predaj novostavba 4-izbového rodinného domu v Prešove

Ulica: Sová ulica
Mestská časť: Šalgovík
Obec: Prešov
Okres: Prešov
Kraj: Prešovský kraj
Druh: Domy
Typ: Predaj
Typ domu: Rodinný dom
264 000 €

Popis nehnuteľnosti

Beplan reality ponúka na predaj novostavbu 4-izbového rodinného domu (dvojdom) s terasou, situovanú na Sovej ulici v Prešove – Šalgovík. Bývanie je navrhnuté tak, aby vám prinieslo komfort v každom ročnom období – v lete ponúka prirodzene príjemný chládok a v zime útulné teplo. Prístup k domu zabezpečuje nová asfaltová cesta, samozrejmosťou je vlastné parkovanie a príjemná terasa, ktorá je ako stvorená na rannú kávu a zaslúžený relax.

Dom:

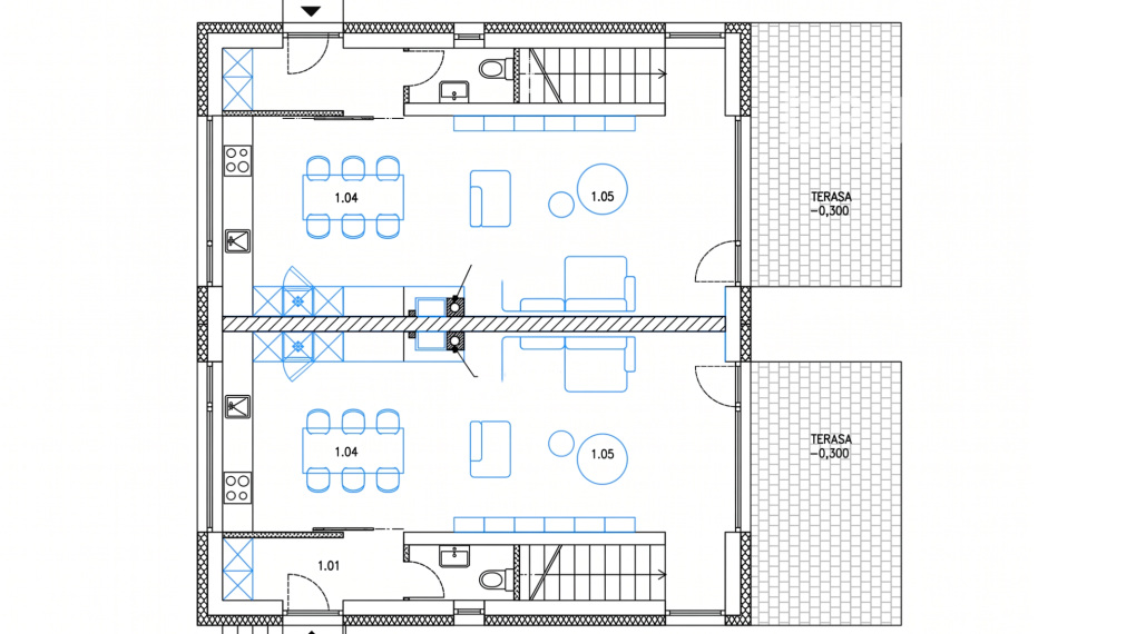
Úžitková plocha: 99 m2
Pozemok: 200 m2
Terasa: 16 m2

Dispozícia:

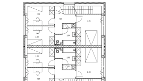
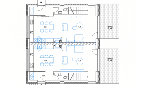
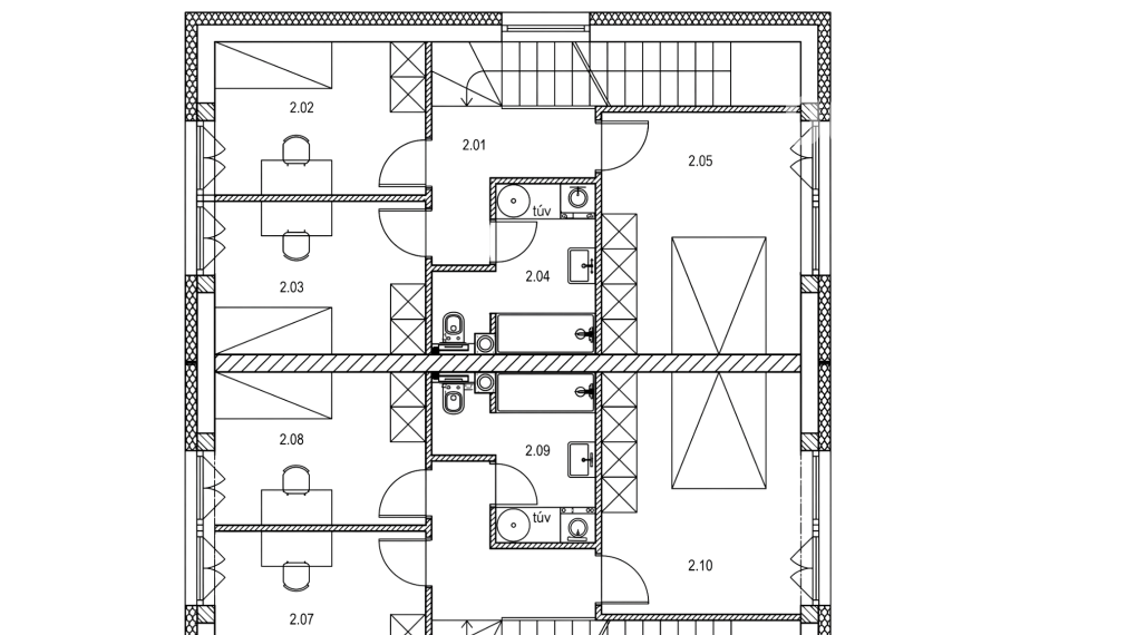
Srdcom domu je presvetlený otvorený priestor na prízemí, ktorý plynule prepája obývaciu časť s kuchyňou a vytvára priamy prechod na terasu. Praktickú dispozíciu prízemia dopĺňa vstupná chodba a toaleta. Poschodie je navrhnuté ako súkromná zóna: tri samostatné, nepriechodné izby a veľkorysá kúpeľňa s toaletou poskytujú dostatok komfortu a súkromia pre každého člena rodiny.

Technický stav:

Tento dom je navrhnutý pre maximálny komfort a nízke prevádzkové náklady, pričom klasickým klimatizáciám u nás už dávno odzvonilo. Vďaka prémiovému systému od značky REHAU s inteligentnou reguláciou si užijete ideálnu teplotu počas celého roka – v lete príjemný chlad a v zime útulné teplo. Tento systém nielenže eliminuje nepríjemný prievan a vírenie prachu, čím vytvára zdravé prostredie vhodné pre alergikov aj rodiny s deťmi, ale je aj vysoko efektívny. Dom je postavený ako „dokonalá termoska“ vďaka kombinácii tehly HELUZ Family (250 mm) a masívneho 200 mm grafitového zateplenia, čo spolu s prémiovými oknami RAKYSTAV s kompozitným jadrom a izolačným trojsklom zabezpečí, že teplo zostane vnútri a hluk vonku. Navyše, dom je už technologicky pripravený na inštaláciu fotovoltiky, tepelného čerpadla a exteriérových žalúzií, čo vám do budúcna výrazne ušetrí náklady.

K bezstarostnému bývaniu neodmysliteľne patrí aj hotová infraštruktúra, preto u nás zabudnete na roky života v stavebnom ruchu. K dispozícii budete mať novú asfaltovú cestu s chodníkom, kompletne oplotený pozemok s rozlohou približne 200 m², hotovú 16 m² terasu a dve pripravené parkovacie státia priamo pri dome. Celú výstavbu realizuje spoločnosť Baumann, ktorá kladie dôraz na vysokú kvalitu a moderné technológie. Štandard „Holodom“ v našom podaní zahŕňa všetky uvedené technológie, oplotenie, parkovacie miesta, terasu a kompletnú infraštruktúru, a ako bonus navyše od nás získate vizualizáciu interiéru na mieru úplne zadarmo.

Názor makléra:

Ako maklér sa často stretávam s tým, že ľudia hľadajú tichú a bezpečnú lokalitu pre seba a svoju rodinu s rýchlym presunom do mesta a následne riešia nízke mesačné náklady. Pri tejto ponuke nájdete oboje. A navyše, vôbec nemusíte hľadať parkovacie miesto – tu máte hneď dve.

Cena:

Holodom -  264.000 €
Vyhotovenie v štandarde (na kľúč): + cca 20.000 €

V cene je zahrnuté:

Provízia realitnej kancelárie a právny servis – vypracovanie rezervačnej zmluvy a kúpnej zmluvy s návrhom na vklad, poplatok za vklad do katastra nehnuteľností a overenie podpisov u notára. V prípade záujmu zabezpečíme rychle a nezávislé poradenstvo v oblasti financovania kúpy a získanie najvýhodnejších podmienok pre hypotekárny úver podľa podmienok kupujúceho. Všetky ďalšie informácie Vám radi poskytneme pri osobnej prehliadke alebo telefonicky.
Rudolf Viola – 0940 978 870

Informácie o nehnuteľnosti sú zverejnené so súhlasom a vedomím vlastníka.

Vlastnosti

Status:
aktívne
Vlastníctvo:
osobné
Plocha pozemku:
200 m2
Úžitková plocha:
99 m2
Zastavaná plocha:
99 m2
Stav:
novostavba
Terasa:
áno
Celková plocha:
99 m2
Terasa plocha:
16 m2
Status:
aktívne
Vlastníctvo:
osobné
Plocha pozemku:
200 m2
Úžitková plocha:
99 m2
Zastavaná plocha:
99 m2
Stav:
novostavba
Terasa:
áno
Celková plocha:
99 m2
Terasa plocha:
16 m2

Informatívna úverová kalkulačka

Pozrieť na mape

Radi Vám poradíme

Podobné nehnuteľnosti